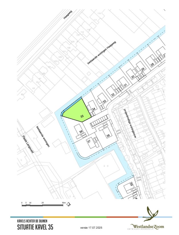
Staat het zelf ontwerpen en bouwen van een woning voor komend jaar ook op uw bucketlist? In fase 4 is op dit moment kavel 35 in project Kavels Achter de Duinen beschikbaar, een mooie bouwkavel van 546 m² gelegen aan het water nabij de Haagweg in Monster. Dankzij de hoekligging aan een klein hofje, en het vrije uitzicht over het water geniet u van optimale privacy en licht. De royale kavel biedt ruimte voor een stijlvolle villa, groene tuinen, uw eigen oprit en de mogelijkheid tot aan- en uitbouwen of bijgebouwen. Bovendien is het mogelijk aan het water een steiger realiseren, ideaal voor een rustige zitplek of gewoon om te genieten van de zonsondergang. Kavel 35 is te koop voor € 750.000 v.o.n.
Volledig uw eigen woonwensen vormgeven
De kavel ligt nabij de zee, tegenover duingebied Solleveld in Monster. Wilt u meer weten over het koop- en ontwerpproces? U leest hier meer over het zelf bouwen van een huis, toegelicht in een uitgebreid stappenplan. Samen met uw eigen architect en aannemer geeft u uw woonwensen vorm, volledig op maat en in harmonie met de natuurlijke omgeving. Hier woont u niet zomaar, hier beleeft u elke dag het buitengevoel van de kust.
De kenmerken van deze kavel:
– Kaveloppervlakte: 546 m²
– Ligging: aan water, nabij duinen en zee
– Vrijheid: zelf bouwen met eigen architect en aannemer
– Ontwerp: op basis van een uitgebreid beeldkwaliteitsplan
– Pluspunten: hoekligging, vrij uitzicht, ruimte voor groen en steiger
Dit jaar beslissen, volgend jaar bouwen
Besluit u dit jaar tot aankoop van een kavel? Dan kunt u volgend jaar al beginnen met bouwen. U heeft dan voldoende tijd om samen met uw architect en aannemer uw woning tot in detail uit te werken, precies zoals u het voor ogen heeft.
Heeft u interesse in kavel 35?
De makelaars geven graag een uitgebreide toelichting. Neem vandaag nog vrijblijvend contact op om de mogelijkheden te bespreken of een afspraak in te plannen!






